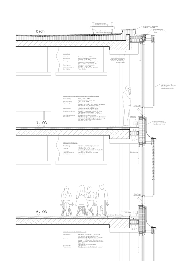
Die Medizinische Universität Innsbruck ist unter anderem in einem Bestandsgebäude aus den 1970er Jahren untergebracht. Gegenstand des Wettbewerbs war die Umwidmung des Bestandsgebäudes in ein Lehr- und Lerngebäude unter Erneuerung der Fassade, Umstrukturierung der Inneren Nutzungen und Neuerrichtung von Hörsälen und Seminarräumen im Bereich des Innenhofs. Das Bestandsgebäude ist ein zeittypisches Beispiel für den Hochschulbau der 1970er Jahre. Bautechnische Probleme und eine nachlässige Instandhaltung kennzeichnen seinen heutigen Zustand. Eine herausragende Qualität des Bestandes ist hingegen dessen Stahlbetonskelettkonstruktion, die eine Anpassung sowohl im Bereich der Gebäudehülle als auch im Inneren des Hauses begünstigt.
Eine neue, vor die Konstruktion gehängte Metallfassade mit vorgefertigten Brüstungen in Trockenleichtbauweise ersetzt die maroden Betonfertigteile des Bestandsgebäudes. Das Bild einer "glatten Haut" wird vermieden: Stattdessen versteht sich die neue Fassade mit ihren Vor- und Rücksprüngen als eine Interpretation der Plastizität der Bestandsfassade. Die alten Hörsäle werden entkernt, das neue teilbare Audimax soll unterirdisch, innerhalb der bestehenden Außenwände realisiert werden. Die Bibliotheken finden ihren Platz im 1. OG und treten an der Fassade ähnlich einer Belétage in Erscheinung. Die Dachflächen der unterirdischen Hörsäle im Innenhof sind als begrünte Terrassen für den Pausenaufenthalt bei im Freien schönem Wetter konzipiert.
Innsbruck, Österreich 2014
Fthenakis Ropee Architektenkooperative







