Das ehemalige Blindeninstitut Friedrich von Gärtners (1833-35) liegt an einer neuralgischen Stelle der Münchner Ludwigstraße gegenüber der Ludwigskirche und der Staatsbibliothek. Der heutige Zustand des Hauses ist ein typischer Hybrid des späten Wiederaufbaus in der Nachkriegszeit: Vollständige Entkernung des Gebäudes in den sechziger Jahren unter Erhalt zweier Gärtner’scher Außenmauern (Ludwig- und Schellingstraße). Das Philologicum, die neu zu errichtende Zentralbibliothek der Sprachwissenschaften, soll den Bestandsbau der Nachkriegszeit ersetzen und zukünftig funktional und räumlich das Zentrum dieses komplexen funktionalen und architektonischen Ensembles bilden.
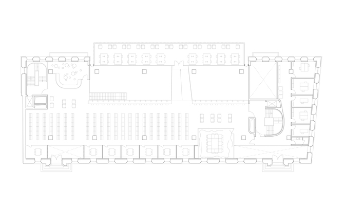
Ausgangspunkt des Projekts ist die entkernte Schale des Gärtnerbaus, die architektonische Ordnung, Maßstäblichkeit, Materialität und Räumlichkeit seiner Außenmauern. Der Neubau soll passgenau in das feine Gewand der Gärtnerfassade schlüpfen, um es mit Eigenständigkeit und Haltung tragen, ohne es zur Verkleidung oder Staffage zu degradieren. Die räumliche Struktur der Bibliothek ist elementar und im Grunde mit Ihrer Rohbaustruktur beschrieben: zwei Deckenplatten und ein Dach, getragen von zwölf kräftigen Stützen, ordnen den von der Bestandsfassade beschriebenen und belichteten Raum. Es entstehen - in Übereinstimmung mit der Gliederung der Bestandsfassaden - drei über einander gestapelte Hallen, die an Raumtypologien von Magazinen oder Manufakturen des 19. Jahrhunderts erinnern mögen, wie das Semperdepot in Wien oder das Entrepot Royal in Brüssel. In den Hauptgeschossen wird die generische konstruktive Grundordnung ergänzt durch die nutzungsspezifischen Einbauten und Möbel, deren Anordnung im Raum sich insbesondere den natürlichen Lichtverhältnissen innerhalb der drei Etagen anpasst. Die Erscheinung der neuen Fassade lässt sowohl Bezüge zur Materialität und Farbigkeit der Bauten der Ludwigstraße als auch zu den umgebenden Institutsbauten der Nachkriegszeit zu.
München 2014
Fthenakis Ropee Architektenkooperative
in Zusammenarbeit mit Victor López Cotelo, Madrid













