Unmittelbar angrenzend an die Allerheiligenkirche der Griechisch-Orthodoxen Gemeinde im Münchner Stadtteil Schwabing soll ein Generationenhaus errichtet werden. Das Geviert, auf dem das Grundstück liegt, ist gekennzeichnet durch eine sich auflösende Blockrandbebabauung der nördlich gelegenen Baublöcke. Derzeit befindet sich auf dem Grundstück ein eingeschossiger Gewerbebau eines Steinmetzes. Der Neubau des Generationenhaus möchte den Baublock nördlich der Kirche zu einem Abschluss verhelfen und den Übergang zur Kirche gestalten.
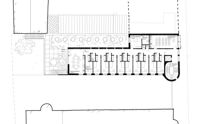
m neu gebauten Generationenhaus sollen Kleinkinder, Studierende und Auszubildende sowie ältere, pflegebürftige Menschen gemeinsam unter einem Dach leben. Eine starke Vernetzung zwischen Innen- und Außenraum spielt eine zentrale Rolle im Konzept des Generationenhauses. Der Kirchenvorplatz dient als Versammlungsstätte der Gemeinde sowie als bespielbarer Außenraum des neuen Generationenhauses. Durch die Abstufung des Gebäudes werden begehbare Terrassen auf allen Geschossen angeboten.
München seit 2023
Generationenhaus
Neubau eines Mehrgenerationenhauses für Studierende, Auszubildende und Ältere mit Kindergarten
|
Status |
in Planung |
| Auftraggeber | Griechisch-Orthodoxe Metropolie von Deutschland |
| Leistungen | Machbarkeitsstudie, Baurechtschaffung |
| Projektgröße | 2500m² BGF |
| Projektteam | Alexander Fthenakis, Miriam Heilig, Valentina Rossa |
Bestandsfotos



Skizze Axonometrie

Skizze Axonometrie

Grundriss 1.OG Studierendenwohnen


