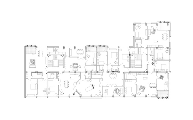
The newly founded housing cooperative "Kooperative Großstadt" wants to implement new forms of urban housing in its first project in Munich Riem: diverse apartment sizes and types, tested typologies as well as completely new concepts of transformable and adaptable forms of co-living shall be accomodated within a building volume predetermined by a masterplan. Our proposal is a first implementation of what we like to call an "inhabitable structure": A generic, flexible and robust load bearing concrete frame, that allows for the (random) accomodation of typologicaly heterogeneous flats, whose partition walls can be adapted or even completely replaced in the long run. The facade is conceived with prefabricated wooden elements that come delivered to the construction site with windows and sun protection integrated and are merely assembled (and later disassembled) on site.
Munich 2017
Fthenakis Ropee Architektenkooperative











