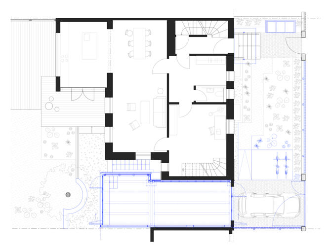
The semi—detached house was recently renovated by its new owners. After inhabiting it for a bit more than a year, the need for some small additions emerged: The preexisting garage shall make place for a space that will not only house the family car but also allow for other uses, especially in the summer: an "inhabitable structure", an atelier, greenhouse, party space, playroom etc. The entrance will receive a light roof, so will the bicycles and garbage containers.
Munich 2024



















