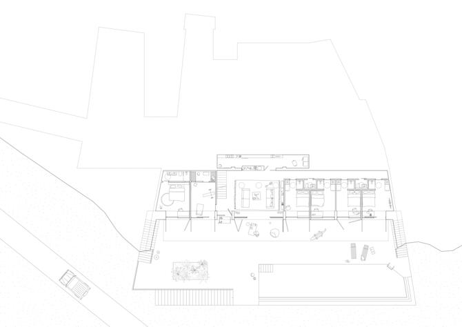
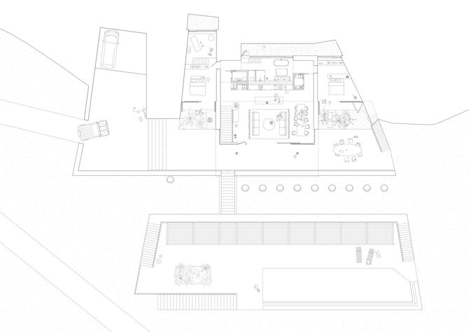
The property lies on a steep hillside in the southern Peloponnese with a small beach at its feet, off the usual tourist trails on the messenean coast. To the east, the view is framed by the mountains of the Mani peninsula. The house is excavated from the rocky hill, embedded into the landscape. Its actual size remains somewhat hidden. Nevertheless, it offers generous space for the large family and its guests.
Messene, Peloponnese, Greece 2020—23









